Descripción
Este es el proyecto de una vivienda unifamiliar situada en Bedia, Bizkaia. La estructura sobre planta baja se proyecta completamente con paneles prefabricados de madera para lo que se requiere un sótano de hormigón perfectamente ejecutado. Como con todo elemento prefabricado, la base debe estar perfectamente realizada y para ellos los arquitectos del estudio Gogara han confiado en nosotros.
Los soportes de dichos paneles deben quedar bien definidos por lo que la precisión con la que se trabaja en este estudio es decisiva a la hora de elegirnos como consultores de estructuras. La estructura aérea de la vivienda, está planteada en CLT, y se compone según la siguiente descripción: “El material de la estructura de cubierta son paneles de madera contralaminada CLT de 140mm de espesor, las fachada y tabiques interiores son de paneles CLT de 100mm de espesor, y el forjado de primera planta será de panel CLT de 180mm de espesor.”
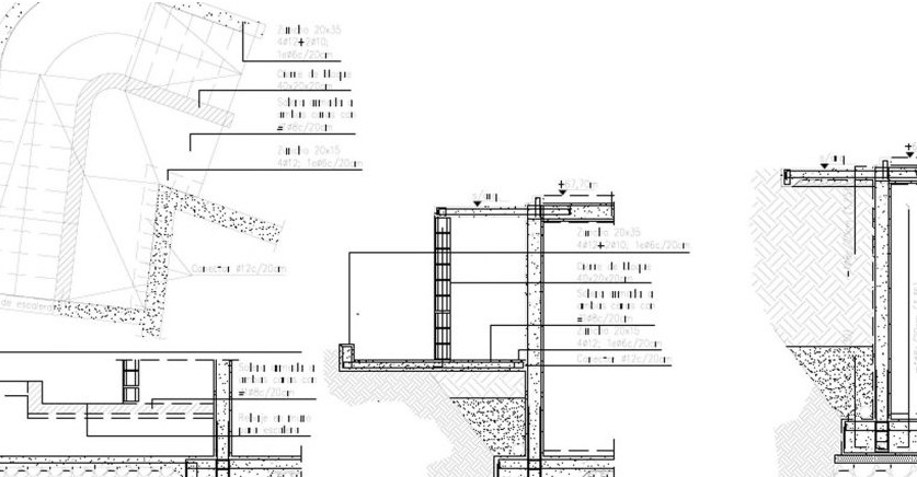
Nuestro trabajo se basa en diseñar un cajón de hormigón acorde al diseño de la planta primera y las cargas a soportar. Tras el análisis geotécnico se decide diseñar muros de contención perimetrales con zapatas corridas sobre las cabezas de los pozos de cimentación. En las zonas aledañas a la vivienda, se propone muros de contención en ménsula que soportan la carga mediante su propia geometría y ayudados por el propio peso de las tierras sobre el tacón.
Una vez en planta baja el hueco del salón hundido, tal y como se ve en las fotografías, da un juego interesante a la estructura de hormigón. Se tiene máximo cuidado en su ejecución y en la colocación de los armados supervisando la obra en los momentos clave. La escalera de planta sótano a planta baja también es de hormigón, al igual que en la ejecución de los soportes de los paneles prefabricados de madera.















